ЖК Все свои VIP

ООО Семья
Для уточнения подробной информации оставьте заявку в отдел продаж!
от 6 776 200 руб.
  • Округ Центральный
  • Район Садовый мост
  • Класс Комфорт
  • Статус дома Последние квартиры
  • Срок сдачи Дом сдан
Общая информация
  • Срок сдачи Дом сдан
  • Класс Комфорт
  • Статус дома Последние квартиры
  • Закон 214-ФЗ
  • Отделка Предчистовая, Чистовая
  • Стены Кирпичные, Монолитные, Сборный железобетон
  • Комнатность Студия, Однокомнатная, Двухкомнатная, Трехкомнатня, 4+
Общая информация о ЖК Все свои VIP

Жилой комплекс ЖК Все Свои расположен в центральном районе в Краснодаре по адресу: ул. Колхозная, д. 5. Комплекс состоит из 9 литеров. Жилые дома включают в себя от 19 до 23 этажей. Окончание строительных работ планируется как в разрешительной документации, но купить квартиру вы можете уже сейчас.

Благодаря расположению ЖК Все Свои в самом центре города Краснодара, жильцы комплекса имеют всю необходимую инфраструктуру. Рядом располагаются школьные и дошкольные учреждения, больницы и поликлиники, банки, торговые центры. В шаговой доступности улица Красная. На территории находятся игровые площадки для детей, сквер, спортивные площадки, подземный паркинг.

Новостройка относится к классу «КОМФОРТ». Стоимость зависит от количества квадратных метров. Минимальная цена – 2 377 900 рублей, максимальная – 7 992 270 рублей.

Хотим познакомить вас с очень интересным жилым комплексом ЖК Все Свои, находящегося в Краснодаре, от проверенного застройщика ООО Семья, который еще строит ЖК Светлоград.

Комплекс располагается в центре города, состоит из 9 литеров. Высота жилых домов от 19 до 23 этажей.

Так как комплекс расположен в центральном районе города Краснодара, то возле него находится все необходимое для комфортной жизни. Вблизи имеются образовательные и дошкольные учреждения, больницы, торговые центры. Недалеко – улица Красная.

Двор ЖК Все Свои полностью закрыт, на территории располагается сквер для прогулок, игровые площадки для детей, спортивные для взрослых, подземный паркинг.

Купив квартиру в жилом комплексе ЖК Все Свои, вы приобретаете уют, комфорт и благоустройство.

Инфраструктура

ЖК Все Свои располагается в центральном районе города Краснодара. За счет этого вся необходимая инфраструктура находится в шаговой доступности.

Вблизи жилого комплекса имеются парки и скверы для прогулки и отдыха, до улицы Красной можно дойти пешком. Также рядом торгово-развлекательные центры, магазины, гипермаркеты.

Не далеко расположены СОШ №47, №30, №78; детские сады №133, №126, №69, №5; поликлиника №2; больницы и банки.

Первые этажи ЖК Все Свои будут предоставлены под коммерческие помещения для магазинов, выставок, кондитерских, фитнес-клубов и студий красоты.

Транспорт

Транспортная развязка позволяет спокойно добраться в любую часть города. Рядом с ЖК Все Свои имеются остановки общественного транспорта.

  • Трамваи: №2, №3, №5, №8, №15, №20, №21, №22;
  • Автобусы: №3, №4, №11, №96, №121а, №196;
  • Троллейбусы: №21, №31;
  • Маршрутки: №25, №35, №121а, №196.

Благоустройство

Застройщик ООО Семья максимально позаботился о комфортной жизни и безопасности своих дольщиков. Двор ЖК Все Свои закрытый, для машин предназначен подземный паркинг.

На территории имеется сквер для прогулок, зона отдыха, игровые детские площадки с большим количеством горок и качель, мягкое покрытие обеспечивает защиту от повреждений. На холодный период времени в комплексе имеется зимняя игровая комната для детей. Спортивная площадка оснащена многочисленными тренажерами.

Отделка квартир

Квартиры ЖК Все Свои сдаются только в предчистовой отделке: застеклены балконы/лоджии, проведены провода, установлены металлические двери и стеклопакет, выполнена стяжка пола, отштукатурены стены.

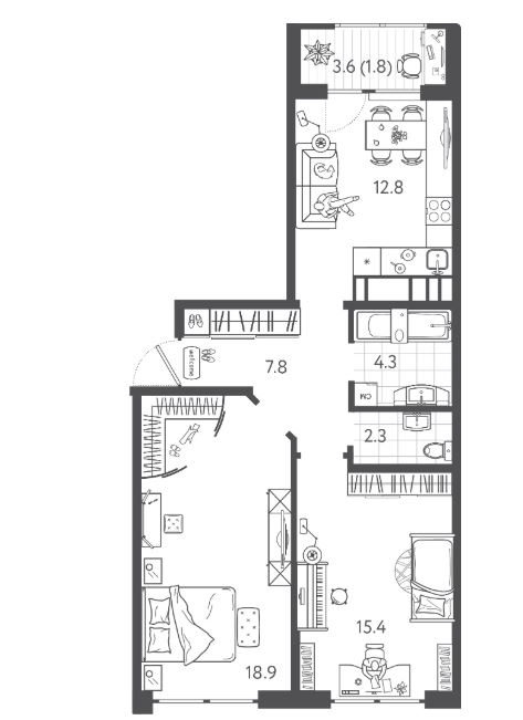
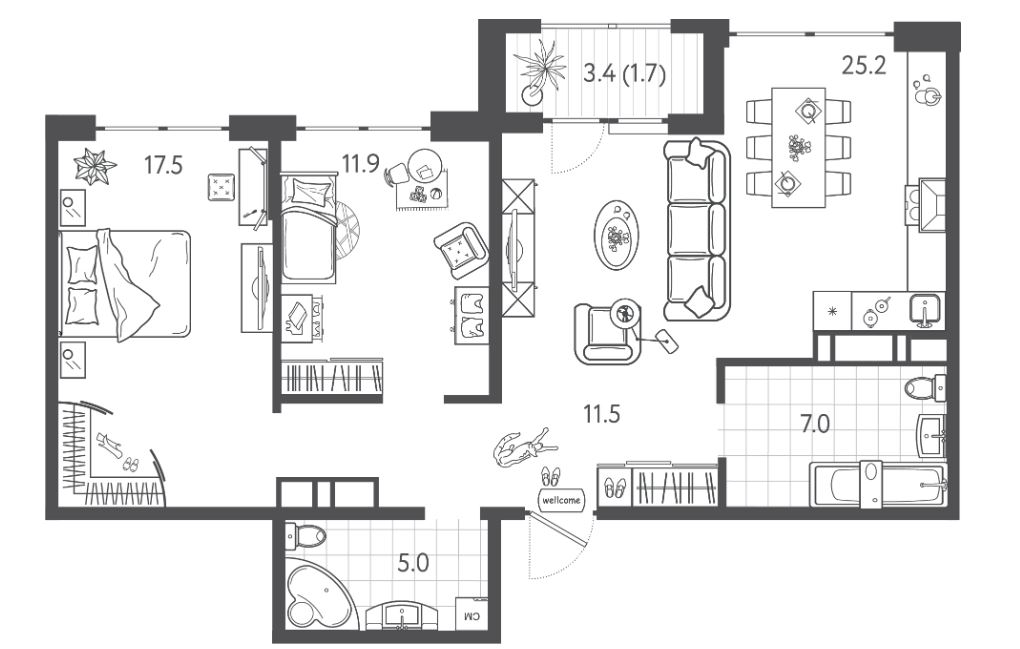
Предлагаем вам ознакомиться с планировками квартир, отзывами жильцов и фотографиями на нашем сайте.

Цены на квартиры
Литер 3
Цена от 6 776 200 руб.
Срок сдачи сдан г.
Планировка Квартира Площадь м² Цена за м² Стоимость
Трехкомнатная
от 89,7 м²
от 235 840 руб./м²
от 20 989 800 руб.
Оставить заявку
Двухкомнатная
от 64,3 м²
от 249 162 руб./м²
от 15 946 400 руб.
Оставить заявку
Студия
от 26,85 м²
от 260 623 руб./м²
от 6 776 200 руб.
Оставить заявку
Трехкомнатная
от 93,2 м²
от 290 623 руб./м²
от 27 028 000 руб.
Оставить заявку
Трехкомнатная
от 112 м²
от 300 000 руб./м²
от 33 600 000 руб.
Оставить заявку
Двухкомнатная
от 64,2 м²
от 228 712 руб./м²
от 14 637 600 руб.
Оставить заявку
Двухкомнатная
от 78,6 м²
от 282 153 руб./м²
от 22 008 000 руб.
Оставить заявку
Литер 4
Цена от 9 637 500 руб.
Срок сдачи сдан г.
Планировка Квартира Площадь м² Цена за м² Стоимость
Двухкомнатная
от 54,4 м²
от 256 888 руб./м²
от 13 872 000 руб.
Оставить заявку
Однокомнатная
от 37,5 м²
от 260 473 руб./м²
от 9 637 500 руб.
Оставить заявку
Двухкомнатная
от 60,2 м²
от 220 733 руб./м²
от 13 244 000 руб.
Оставить заявку
Двухкомнатная
от 59,2 м²
от 220 745 руб./м²
от 13 024 000 руб.
Оставить заявку
Трехкомнатная
от 89,15 м²
от 240 404 руб./м²
от 21 396 000 руб.
Оставить заявку
Трехкомнатная
от 93,25 м²
от 290 779 руб./м²
от 27 042 500 руб.
Оставить заявку
Трехкомнатная
от 87,9 м²
от 293 000 руб./м²
от 25 491 000 руб.
Оставить заявку
Литер 6
Цена от 9 581 000 руб.
Срок сдачи сдан г.
Планировка Квартира Площадь м² Цена за м² Стоимость
Однокомнатная
от 36,85 м²
от 266 138 руб./м²
от 9 581 000 руб.
Оставить заявку
Однокомнатная
от 39,5 м²
от 272 769 руб./м²
от 10 638 000 руб.
Оставить заявку
Трехкомнатная
от 97,65 м²
от 302 010 руб./м²
от 29 295 000 руб.
Оставить заявку
Однокомнатная
от 39,4 м²
от 272 769 руб./м²
от 10 638 000 руб.
Оставить заявку
Двухкомнатная
от 63,5 м²
от 226 785 руб./м²
от 14 287 500 руб.
Оставить заявку
Двухкомнатная
от 79,65 м²
от 302 468 руб./м²
от 23 895 000 руб.
Оставить заявку
Трехкомнатная
от 101,55 м²
от 311 688 руб./м²
от 31 480 500 руб.
Оставить заявку
Трехкомнатная
от 112,85 м²
от 312 352 руб./м²
от 34 983 500 руб.
Оставить заявку
Трехкомнатная
от 82,65 м²
от 246 945 руб./м²
от 20 249 500 руб.
Оставить заявку
Литер 7
Цена от 11 000 000 руб.
Срок сдачи сдан г.
Планировка Квартира Площадь м² Цена за м² Стоимость
Двухкомнатная
от 58,4 м²
от 271 862 руб./м²
от 15 768 000 руб.
Оставить заявку
Двухкомнатная
от 87,8 м²
от 302 758 руб./м²
от 26 340 000 руб.
Оставить заявку
Двухкомнатная
от 57,15 м²
от 250 657 руб./м²
от 14 287 500 руб.
Оставить заявку
Трехкомнатная
от 91,45 м²
от 301 483 руб./м²
от 27 435 000 руб.
Оставить заявку
Трехкомнатная
от 84,5 м²
от 301 785 руб./м²
от 25 350 000 руб.
Оставить заявку
Однокомнатная
от 36,85 м²
от 307 083 руб./м²
от 11 055 000 руб.
Оставить заявку
Однокомнатная
от 40 м²
от 275 000 руб./м²
от 11 000 000 руб.
Оставить заявку
Литер 8
Цена от 8 749 500 руб.
Срок сдачи сдан г.
Планировка Квартира Площадь м² Цена за м² Стоимость
Студия
от 30,7 м²
от 291 650 руб./м²
от 8 749 500 руб.
Оставить заявку
Двухкомнатная
от 62,9 м²
от 257 687 руб./м²
от 15 976 600 руб.
Оставить заявку
Двухкомнатная
от 55,35 м²
от 231 463 руб./м²
от 12 730 500 руб.
Оставить заявку
Двухкомнатная
от 49,39 м²
от 257 029 руб./м²
от 12 594 450 руб.
Оставить заявку
Трехкомнатная
от 88,6 м²
от 302 045 руб./м²
от 26 580 000 руб.
Оставить заявку
Двухкомнатная
от 48,2 м²
от 256 062 руб./м²
от 12 291 000 руб.
Оставить заявку
Двухкомнатная
от 61,35 м²
от 256 463 руб./м²
от 15 644 250 руб.
Оставить заявку
Расположение на карте
Ход строительства

Видеть динамику строительства ЖК Все свои VIP очень важно, это является основным показателем, что стройка движется, а не стоит на месте. Будьте очень внимательными, если долгое время не выкладываются актуальные фотографии строительства, лучше поехать на строительную площадку и убедиться лично в продвижении строительства новостройки.

  • Елена
    Thu Nov 28 2024 11:01:55
    В центре почти нет современных новостроек бизнес-класса, да и места для них толком нет, из всего «многообразия» нам понравился Все Свои Вип. Неплохое расположение, до Красной пешком дойти можно минут за 10, вся инфраструктура есть, а на территории свой детсад и гимназия.
  • Кирилл
    Fri Nov 22 2024 16:39:19
    Расположение сыграло ключевую роль. Рядом Чистяковская роща, с детьми там гуляем постоянно, парк Галицкого, туда тоже ездим, театр Драмы, до Галереи на машине минут 10. Все поблизости, что и понравилось.
  • Павел
    Tue Oct 29 2024 15:25:30
    Пожалели, что не решились брать раньше, под конец уже не так много вариантов осталось и цены выше первоначальных. Но это все нивелируется прекрасным расположением, до нашего БЦ пешком за 20 минут можно дойти, а на машине так вообще за 8-10. Так что в офис добираться будем в два раза быстрее, чем с прошлого жк в Западном округе)
  • Елена
    Tue Sep 24 2024 13:07:20
    Крутая идея с туром формата 3д по территории и жк. Можно и на пешеходном мосту «побывать» (там тоже зоны отдыха будут), и воркаут оценить, и площадки детские. А еще можно «зайти» в холл, осмотреться, даже на паркинг «спуститься» есть возможность. Визуально нам комплекс нравится, думаем над планировкой теперь)
  • Савелий
    Fri Aug 16 2024 23:40:10
    Мы с женой исполнили нашу заветную мечту - купили квартиру в центре города. Радует, что получилось приобрести именно нормальный бизнес, а не что-то уровня человейника. У нас трешка с мастер-спальней, внутри которой ещё огромная гардеробная комната. У жены загорелись глаза, когда она её увидела. Представляю, что будет, когда на первых этажах жк откроются маркетплейсы.)
  • vladakim
    Wed Aug 07 2024 11:48:06
    Район для постройки очень удачный, центр Краснодара. Рядом парки, ТЦ и вся необходимая инфраструктура. Моя любимая Чистяковка тоже неподалеку
  • Света потапова
    Thu May 30 2024 11:03:54
    Перед покупкой посмотрели шоурумы, как раз анонсировали в телеге, что появилась такая возможность. Нам очень понравилось, потолки высокие, окна большие, много света и места. Будем брать 2-комнатную и сразу место в паркинге.
  • Соловьева а
    Fri May 17 2024 17:39:51
    До сдачи немножко осталось, у нашего литера самая высокая степень готовности 85%. В таком предвкушении находимся, что уже ездили в филиал открытой недавно 23 гимназии на территории жк, посмотреть и пообщаться с заучем об устройстве ребенка в школу в новом учебном году)) Внутри все так современно, новенькие парты, стулья, оборудование. Сама бы в такой училась))
  • Кариночка)))
    Wed May 15 2024 10:25:06
    Нравится, что думают о тонкостях. Вроде дренажных систем чтоб вода не капала со сплитов, сочетания лифтов с дизайном всего комплекса и все в таком духе. Мы купили 1-комнатную, под сдачу, еще на этапе котлована. И чем ближе ввод, тем больше думаем о покупке для себя тоже.
  • Stas_BL
    Wed Apr 24 2024 11:20:33
    Из плюсов. В начале апреля взял здесь однушку. Сходу привлекло что у СК не было просрочек, какие-то ЖК бывало что раньше вводили. В «Все свои вип» есть умный дом, постоянное видеонаблюдение и приватная территория. Глаз порадовался дизайнерскому лобби и неброским фасадам, незыблемая классика минимализма)) Сначала думал, что цена это минус. Но потом прикинул, что глупо за бизнес-класс в центре ждать 100 тыс за кв/м.
  • неля
    Mon Apr 22 2024 12:25:28
    Порадовали нас открытием филиала 23 гимназии, еще до ввода дома. Переживала, что заедем осенью в новую квартиру, в следующем году нам в школу идти, вдруг не построили бы к этому времени. Но все ок, Семье спасибо!
  • dreamtrue
    Mon Apr 01 2024 10:05:07
    Жк будет буквально нашпигован камерами. В наше время это очень актуально. Умный домофон с записью (видно кто и когда приходит, кто звонит тебе в квартиру),возможность открывать дверь через приложение (например если вы не дома, можно запустить курьера, чтобы оставил посылку под дверью). Ну и доступ в подъезд по фейс айди (ключ можно не носить). Помимо этого запись 24/7 и это только с домофона + еще своя охрана на территории.
  • Сергей
    Sun Mar 31 2024 23:06:07
    Решили запрыгнуть в последний вагон до повышения цен. Хотели брать квартиру ещё в январе, но потратили много времени, чтобы изучить рынок, почитать форумы, что люди говорят. Друзья наши напоролись на недобросовестного застройщика, поэтому так тщательно и выбирали. У "Семьи" долгостроев и заморозок нет, движение на строительной площадке ВСе Свои VIP отметили за этот период поиска квартиры. На следующей неделе уже подписание, взяли здесь двушку.
  • Анна К.
    Fri Mar 29 2024 07:20:46
    Сначала показалось, что ценник высоковат, но метраж у квартир больше среднего. Да и плюшек немало, будет: вход по фейс айди ,умный шлагбаум, видеонаблюдение. В наши неспокойные времена лучше доплатить, но чувствовать безопасность.
  • VValera
    Thu Mar 28 2024 16:44:15
    Купили трешку для большой семьи. У нас с женой будет мастер-спальня, у детей отдельный санузел. Плюс гостевой. 2 лоджии. Кухня 15 кв.м. У других застройщиков похожих вариантов не нашли. Было либо дороже вдвое, либо площади меньше. Или евро планировки, которые потом все равно зонируют.
  • алла
    Fri Mar 15 2024 11:59:01
    Нашла здесь однушку как раз под меня. Спальня 18 квадратов, кухня гостиная – почти 16. Для сравнения сейчас живу в студии 20 кв)))) Если отделить кухню какой-нибудь перегородкой, вообще двушка будет. За 9 млн в центре найти что-то лучше нереально как по мне.
  • Мария
    Wed Feb 28 2024 09:52:06
    Рассматриваем для покупки квартиры только центр и сейчас Все Свои фаворит. По удобствам в целом похоже на другие жк в этом ценовом сегменте, но муж знает застройщика, так что больше довериям ему. К тому же два литера уже сданы, так что риски минимальные.
  • оля
    Mon Feb 26 2024 11:19:14
    Меня порадовало, что территория ЖК будет закрытой. Детей будем спокойно отпускать во двор одних. Мои в след году в школу пойдут, отправлю их в местную гимназию. Она будет как филиал 23, надеюсь качество образование будет на той же планке.
  • Sveta
    Wed Feb 21 2024 09:51:23
    Взяли двушку с дизайнерским ремонтом. И так собирались его брать, но в итоге даже попали в классную акцию, что ремонт в подарок пошел. Сама квартира сразу легла на душу: почти 64 квадрата, мастер-спальня с гардеробной и просторная кухня с выходом на лоджию.
  • Михаил
    Tue Feb 20 2024 09:42:25
    Пока думаю над покупкой, но уже уверенно могу сказать, что проект интересный. Локация супер, совсем рядом с Чистяковской рощей. На территории жк сад и школа, поэтому проблем с перегрузом местной социалки быть не должно. Стоимость, конечно, солидная, но понятно почему: метраж у квартир щедрый, система умный дом, качественная отделка и все последующие плюшки бизнеса.
  • Юлия
    Thu Jan 25 2024 16:00:24
    После выдачи ключей сразу переведем сына в филиал 23 школы. В первый корпус сложно попасть, это очень престижное учреждение, где хотят учиться все. А тут будем ходить по прописке на полных правах. От нашего дома до нее всего пару минут, здание уже ввели в эксплуатацию. Смотрела фото в интернете, масштаб и ремонт на высоте, как и сам ЖК. Всё сделано в лучшем виде!)
  • Максим
    Tue Jan 23 2024 14:44:08
    Купили квартиру в этом ЖК сразу с машино-местом. Хоть здесь всё в шаговой доступности, сад и школа рядом + до ул. Красной всего 10 минут пешком, а это самое сердце города с магазинами и салонами. Но все равно не поскупились, машина будет стоять в сухом помещении под видеонаблюдением с охраной, а значит с ней точно ничего не случится
  • Алексей К.
    Tue Jan 16 2024 14:06:25
    В все свои вип каждый шаг цифровизировали. Вход по новомодному фейс-айди, шлагбаумы сами будут сканить номер машины, «умный дом» за тебя все показания в ук передаст. Ради такого удобства купили здесь 2-комнатную квартиру общей площадью 84.4 кв. м. Таких метров нигде не встречал.
  • Артем
    Thu Dec 28 2023 11:43:35
    Работаю в центре, поэтому квартиру искал где-нибудь поблизости. Приглянулся жк Все Свои Вип. Купил там двухкомнатную квартиру на этапе строительства по выгодной цене. Уже определился как буду ездить, по Садовой и дальше на Северную. По времени всё займет минут 7-10, если ориентироваться на свои подсчеты. Осталось только дождаться сдачу дома и можно заезжать
  • Надя М.
    Wed Dec 20 2023 11:41:58
    Из плюсов: комплекс расположен в центральном р-не, но тем не менее здесь неоживленное движение. Чистяковская роща в пешем доступе. Можно будет управлять домом через телефон. Про застройщика узнала абсолютно случайно. Ехала мимо и обратила внимание на стройку и красивые фасады. Погуглила, что да как. Нашла здесь крутой вариант с лоджией и большой кухней. Это однокомнатная квартира, видовая. Рядом будет все необходимое – от прогулочных зон до супермаркетов и паркинга. Минусы: стоимость квартир нужно узнавать только по запросу. На сайте информации нет.
  • Ольга
    Thu Dec 14 2023 15:49:40
    Приобрели с мужем здесь квартиру. Среди всех жк в Краснодаре Все свои оказался самым удобным по локации. Новый комплекс в центре – это подкупает. Не нужно будет вставать чуть свет, чтобы добраться до работы. Еще после сдачи дома на первом этаже будет коммерческий с магазинами и салонами красоты, для нашей семьи это как раз актуально. Застройщик следит за теми, кто будет входить в коммерцию, поэтому будет классно, а не пивнуха на пивнухе, как часто бывает. Так что ждем с нетерпением выдачу ключей
  • Анастасия
    Mon Dec 11 2023 10:41:59
    Выбирали между этим жк и другим застройщиком. Подкупил бизнес-класс и хорошие цены для центра города. Понравился и внешний вид домов, и прилегающая территория, и скорое открытие филиала 23 гимназии. Детсад, кстати, уже сдан. До моей работы 20 минут на машине, мужу тоже недалеко. Мы решили взять 2-комнатную кв. с кухней-гостиной и лоджией.
  • Ирина Мазина
    Tue Nov 21 2023 14:29:37
    Из всего разнообразия планировок самой удобной, как мне показалось, будет трёшка на 87 квадратов с двумя сан узлами и двумя лоджиями. Для нашей большой семьи прекрасно подойдёт, две дочки будут в одной комнате, сынок во второй, ну а мы с супругом в третьей, а в большой кухне гостиной можно будет оставить с ночевкой друзей или родителей. После переезда и очереди в ванную не будет по утрам)
  • Андрей К
    Wed Oct 25 2023 15:32:27
    Брали однушку в первой очереди, теперь зудмались о пополнении и поняли, что будет тесно жить втроём. Качество, расположение и цена нас полностью устраивают, да и привыкли уже жить в этом раойоне, поэтому решили брать двушку тут же во второй очереди.
  • Нина
    Wed Sep 20 2023 08:28:43
    Нам в "Все Свои" понравилось, что рядом будут школа и детский сад. Не нужно будет каждое утро возить детей через весь город. Уже представляю, как они будут сами ходить в школу. Всё для комфорта жителей)
  • Михаил
    Mon Sep 11 2023 13:53:02
    Дома быстро строятся в этом месте. Хотя комплекс еще не до конца готов, но уже выглядит стильно и дорого, в ночное время фасады будут подсвечиваться декоративными светильниками. В квартирах будут большие панорамные окна, во дворах качественное благоустройство и много парковочных мест.
  • Ласковая Татьяна
    Tue Aug 29 2023 11:35:42
    Решили улучшить жилищные условия, купив здесь квартиру. Наконец-то современные технологии будут работать на комфортную жизнь. Уровень сервиса и безопасности комплекса достойные. При въезде на территорию будет стоять пункт круглосуточной охраны, в подъезд можно попасть только по магнитному ключу, либо настроить бесконтактный вход по фейс-айди, есть консьерж-сервис. По камерам через телефон смогу посмотреть, что происходит на территории. Понравилось, что не нужно каждый месяц передавать показания счетчиков, они самостоятельно отправляют сведения в УК при помощи системы умный дом.
  • Диана Овчинникова
    Thu Aug 24 2023 13:28:05
    Когда стоит перед выбором, хочется уверенности. Мне в "Все Свои вип" понравилась система безопасности — закрытая территория, везде камеры, будет свой пункт ЧОП, вход домой по файс айди или индивидуальному ключу. Это придает уверенности. Плюс, панорамные виды на исторический район и парк — это просто кайф. Вечерами люблю наблюдать закаты.
  • Юлия
    Thu Aug 17 2023 14:30:48
    В этом комплексе предусмотрено все до мелочей. Уже построен детский садик и скоро достроят школу. Причем не абы какую, а филиал одной из лучших гимназий Краснодара. Также в нашей второй очереди будут уютные детские площадки, спортивный уголок и места для отдыха. С парковками здесь тоже порядок, за машину можно будет не переживать.
  • Света
    Wed Aug 02 2023 10:33:32
    Действительно круто, что под застройку выделили такую большую территорию, так дома не будут стоять вплотную и заглядывать друг другу в окна. К тому же двор во второй очереди будет просто огромный, а главное какой интересный) Тут тебе и мост, и беседки, и спортивные и детские площадки и куча еще всего.
  • Роман Т.
    Thu Jul 20 2023 16:02:39
    Зная, какие пробки у нас в Красе, при выборе комплекса в первую очередь оценивали расположение и инфраструктуру. ЖК находится недалеко от моей работы, и это уже было поводом обратить на него внимание. Все необходимые магазины в шаговой доступности, ТЦ Центр города в 7 минутах езды, для прогулок рядом есть парк чистяковская роща. Отдельно отмечу, что на территории комплекса находится школа, по пути к которой не нужно переходить дорогу, наши детишки сами смогут добираться на занятия, а мы с женой будем уверены в их безопасности.
  • Мари
    Fri Jul 07 2023 14:24:58
    Скидки всегда приятно получать, а когда скидка оказывается больше миллиона – просто без комментариев. Взяли одну из 20 квартир с выгодой, хорошо, что нам в офисе продаж рассказали про эту акцию. Теперь ходим довольные)
  • Анна
    Fri Mar 31 2023 09:49:48
    В декабре садик новый сдали, как и было обещано застройщиком. Это хорошо. Разгрузим наш соседний детский сад, куда сейчас ребятню водим) Тут хотя бы до нее не так далеко идти будет, соответственно рано вставать не придётся)
  • Лариса
    Sun Mar 05 2023 13:45:13
    Застройщик комплекса добросовестный. Людям всегда нужны детские учреждения возле своих домов, а Семья на этом также специализируется, как и на постройке жилых домов. Не всегда такое, к сожалению, бывает у застройщиков, им надо брать пример с Семьи. Вроде возводят новые микрорайоны, но элементарно детей некуда пристроить, потому что либо забиты школы\сады, либо они далеко. А детей-то возить же надо, если еще возраст не позволяет отпускать одних... У нас тут недавно открыли детский сад, за что огромное спасибо застройщику.
  • Елена
    Mon Feb 20 2023 10:37:47
    Я во «Все свои» пока не живу, у меня квартира в новой очереди. Тем не менее, бываю здесь довольно часто, когда прихожу в гости к сестре. Собственно, после таких вот посещений я на этот комплекс насмотрелась и решила тоже сюда переехать) Квартира у сестры хорошая, светлая и теплая. Двор классный, для детворы места полно, и взрослым есть где отдохнуть. Спокойная семейная атмосфера тут.
  • Дмитрий
    Wed Jan 18 2023 15:09:42
    Успел купить в этом комплексе квартиру, машиноместо в паркинге и кладовую по комбо-ипотеке от сбера. Удобно что все в один платеж зашивают. Брал здесь, потому что расположение в центре, да и застройщик надежный, уже детский садик сдали, ребенка туда определю по переезду.
  • Олеся
    Fri Dec 23 2022 09:33:22
    На внутренней территории не будет ни магазинов, ни офисов, ни машин. Все коммерческие заведения будут с внешней части комплекса. Поэтому отпускать ребенка на площадку буду без опаски. Плюс разнообразные зоны будут привлекать не только малышей, но и ребят постарше, а также их родителей. Особенно зоны для спорта и беседки для отдыха.
  • Виктория
    Mon Dec 12 2022 10:24:10
    Комплекс в среднем ценовом диапазоне, не смотря на то, что его расположили в центре Краснодара. Неудивительно, что инфраструктура тут налажена – клиники, кафешки, продуктовые в шаговой доступности. При этом первые этажи домов будут нежилыми, откроют коммерцию. И радует то, что вместе со второй очередью строят школу и детский сад.
  • Татьяна
    Tue Nov 29 2022 09:57:56
    Налаживают свою социальную инфраструктуру на территории комплекса. Совсем скоро откроют школу, которую сдадут вместе со второй очередью, а детский сад уже достраивают. Когда покупали здесь квартиру как раз учитывали этот момент, у ребенка возраст подходит, чтобы отдавать в детский сад.
  • Ирина
    Fri Oct 21 2022 17:51:49
    Взяли квартиру на последнем этаже, чтоб над головой никто не ходил. А с тем учетом, что окна панорамные, будет шикарный вид на центр Краснодара, особенно вечером. И света в квартире будет в два раза больше. Это вдобавок визуально увеличит комнаты. Хотя они и так большие, потому что на метраже застройщик, к счастью, не экономит.
  • Виктор
    Thu Sep 29 2022 10:51:45
    Не зря комплекс первое место по Краснодару на ерз.рф занимает. Во-первых, это единственная новостройка в центре. На то, чтобы все достопримечательности города объехать, максимум 10 минут уйдет. Во-вторых, тут своя инфраструктура: магазины на первом этаже + садик и школу достраивают.
  • Инна
    Mon Sep 19 2022 13:46:24
    Брали квартиру тут из-за локации - центр Краснодара, инфраструктура уже готовая, + вся готовая социалка при комплексе будет. Поиграть и отдохнуть тут есть где. Двор как отдельный парк будет с зеленью, лавочками, кучей игровых площадок. В сданных домах площадки не однообразные, для разных возрастов. Нашему ребенку 5 лет, иногда приезжаем сюда погулять, всегда полный восторг!
  • Илья
    Fri Sep 16 2022 12:17:33
    Качество постройки на 5. Не зря говорят что Семья грамотно строит. Дом кирпично-монолитный, хорошая тепло и шумоизоляция, все счетчики есть, электричество при входе в квартиру, видеодомофон. И хочу отметить локацию, удобный выезд на улицу Колхозную а там по Садовой и Северной до ТРЦ Галерея 10 минут, и до Чистяковской рощи 15 минут прогулочным шагом.
  • Елизавета
    Mon Sep 12 2022 13:55:29
    Вот все пишут про площадки, а мне внешний вид жилого комплекса очень нравится. Фасады аккуратные, цвета нежные – шоколадный и бежевый. Лоджии сразу с остеклением от застройщика сдаются и короба под сплит-системы - всё в одном стиле, без самодеятельности. Входные группы хорошие. Деревянные панели и кирпичные стены хорошо сочетаются с зеленью, высаженной у дома.
  • Димон Хакимов
    Thu Aug 11 2022 10:08:50
    При заезде понял что на кухне не хватает розеток, но вывезти дополнительные не проблема, в остальном ровные стены на которые можно сразу клеить обои. Ровная стяжка пола, трубы в ванной закрыты аккуратным гипсокартонным коробом. За окном уже установлена подставка для кондиционера и отдельное спасибо за качественную входную дверь с тремя добротными замками.
  • Руслан
    Tue Jul 26 2022 15:15:37
    Прозрачная компания, видео-фото-отчеты о строительстве на сайте посмотреть можно, документацию тоже. СК в топе надежных застройщиков, за сроки строительства и сдачу не переживаем. Сейчас акция удачная попалась оформился без первоначального взноса, чтобы сразу не было нагрузки на семейный бюджет.
  • Илья
    Tue Jul 19 2022 12:18:12
    В центре выбирать из новостроя не приходится, места мало, земля дорогая, а во Все свои умудрились комплексное жилье сделать с садиком и школой на территории. Понятно, за что тут платить приходится, все-таки тут все в пешей доступности, на работу без пробок можно попасть. Пока социалка строится цены еще вменяемые, а после сдачи цены тут в разы вырастут.
  • Наташа Руденко
    Tue May 31 2022 10:36:18
    В центре всегда была дорогая земля, поэтому цены и растут. За такие удобства комплекс однозначно стоит своих денег. Особенно понравилось, что безопасности уделили внимание. У жк закрытая территория, охрана и видеонаблюдение без слепых зон, не страшно отпустить сына во двор элементарно поиграть. Место в подземном паркинге покупать пока не стали, обычной парковки вполне хватает, посмотрим, как пойдет дальше) Развлечения в пешей доступности, например в Чистяковской роще, каждый выходные пешком туда ходим.
  • Султан
    Mon May 23 2022 10:51:21
    Жк в центре города, есть где погулять вечером – полно благоустроенных площадок. Особенно понравились спортивные площадки – можно позаниматься на тренажерах, поиграть в баскетбол. Также рядом Чистяковская роща. В доме сквозные подъезды, нет необходимости его обходить. Безопасность на уровне – территория охраняется, ведется видеонаблюдение, есть видеодомофон.
  • Игорь
    Thu May 19 2022 18:48:08
    Качественный и красивый комплекс. Ключи получили в прошлом году, ремонт сделали за пару месяцев. Стены и полы ровные, поэтому никаких сложностей не было. Потолки в квартире выше, чем в обычных домах. Окна так же увеличенные, плюс с жароотталкивающим покрытием. Весь комплекс построен по современным  технологиям, даже есть система Умный дом.
  • Константин
    Thu May 05 2022 15:40:10
    Жене приглянулась двух комнатная с мастер-спальней, будет хозяйская ванная комната с душевой. А мне по нраву увеличенная лоджия почти шесть квадратов, лаундж зона будет кстати после дня в офисе. Интересные фишки будут в комплексе, фэйс ид, вход по отпечатку пальца для жильцов верхних этажей как мы, система умный дом. Рады что купили квартиру на этапе строительства, цена приемлемая, а с учетом наполнения особенно.
  • Кристина
    Thu Apr 28 2022 09:35:47
    Красивый современный жилой комплекс с системой умный дом. Видеодомофоном удобно пользоваться, видно, кто к тебе пришел, даже когда тебя нет дома. У нас трехкомнатная с окнами на обе стороны. С одной стороны видно двор с паркингом, а с другой - обзор на весь город.
  • Ольга Машкова
    Wed Apr 27 2022 10:10:42
    При выборе квартиры основной упор делали на расположении комплекса, чтобы вблизи центра. Да, пробки здесь частые, особенно в час пик, но это проблема не только этого района, а всего города в целом. Еще важно было, чтобы двор был закрыт от машин и оборудованные детские площадки. Когда мы с мужем увидели фотографии проекта на сайте, сразу решили, что это наш вариант. ЖК нам подошел по всем критериям. 
  • Марьяна
    Tue Apr 26 2022 10:48:53
    У нас двухкомнатная в ЖК Все Свои. Недавно закончили с ремонтом и сразу заехали. Живем около месяца. Соседи по площадке еще занимаются отделкой. Слышно было, когда сверлили стену под шкафчики на кухне, а в остальном звукоизоляция вполне нормальная, голосов по крайней мере не слышно. Окна не продувают, шум с улицы не пропускают. В общем квартирой мы довольны, и расположение у комплекса хорошее, в самом центре.
  • Алена Раскольникова
    Mon Apr 25 2022 14:14:04
    Взяли квартиру в 8 литере, чтобы окна выходили на Чистяковскую рощу. Будет двухкомнатная квартира, 2 санузла (один с ванной сделаем, а другой с душевой). Готовой отделки не предусмотрено, поэтому пока что занимаемся поиском профессионального дизайнера. Еще думаю можно будет из кухни сделать кухню-гостиную. В каждом подъезде консьерж и система умный дом.
  • Кристиана
    Tue Mar 29 2022 16:43:39
    Квартира была с базовым ремонтом, нам это удобно, т.к. муж сам занялся дизайном и нанял бригаду своих мастеров. Планировка настолько продумана, что мы почти ничего не меняли, только расширили немного вход на кухню-гостиную, убрав небольшую перегородку. Район тоже хороший, обжитой с развитой инфраструктурой.
  • Кристина
    Mon Mar 28 2022 15:46:07
    Хороший современный жк с удобным месторасположением. Квартиры с предчистовой отделкой, довольно качественной. Мы нанимали дизайнера. Он сказал, что ему было приятно работать с такой удобной планировкой. Мастера по ремонту тоже хвалили предчистовую отделку от застройщика. В итоге дизайнерский ремонт сделали всего за два месяца. Квартирой довольны.
  • Елена
    Mon Mar 21 2022 16:00:24
    Купили квартиру в первой очереди. Недавно закончили с ремонтом, готовимся к переезду. У нас трешка общей площадью 90 квадратов. Большие комнаты, столовая, лоджия, три санузла, хорошая планировка. Нравится цветовое решение самих домов, хорошо, что не выкрасили в яркие цвета. Комплекс в современном европейском стиле.
  • Галина
    Fri Mar 18 2022 17:25:37
    Мы переехали из Архангельска. Цены на недвижимость здесь белее демократичные, поэтому не раздумывая взяли двушку квадратурой 63 метра. Современная планировка, большие комнаты, кухня-столовая. Сам жк выглядит дорого и престижно. Стильные фасады с панорамным остеклением. И место под комплекс застройщик выбрал удачное, в самом центре.
  • Андрей
    Mon Mar 14 2022 17:20:03
    Красивый современный жилой комплекс с продуманной инфраструктурой. Понравилась идея со стилобатом, вверху двор-парк с ландшафтным оформлением, а снизу парковка. Удобное географическое расположение, отсюда легко добраться в центр города. Взяли двушку квадратурой 60 метров с большой кухней и двумя санузлами, по факту как евро трешка. Стеклопакеты стоят качественные и входная дверь добротная, даже не стали менять.
  • Али Грачев
    Sat Feb 26 2022 20:03:58
    Мне нравится, что в этой новостройке все современно. На входах в подъезды будут видеодомофоны, открыть дверь гостям можно с телефона. Особенно это удобно, когда намечается встреча с друзьями, чтобы не бегать каждый раз к двери, когда приходит кто-то из гостей. Самому войти в подъезд можно либо по магнитному ключу, либо через распознавание по лицу.
  • Кристина Осипова
    Fri Feb 25 2022 15:20:20
    Квартиру брала специально на высоком этаже, вид на город. Ключи еще в том году получила, но активно ремонтом занялась перед новым годом, в апреле уже заеду скорее всего. Качество строительства нормальное, никаких замечаний не было, приемку с первого раза подписала. А еще в каждой квартире есть система умный дом, хочется поскорее опробовать.
  • Антон
    Mon Jan 31 2022 11:49:24
    Проблем с приемкой квартиры в 5 корпусе не было, весной планирую заехать, пока идет ремонт. Окна большие, выходят на железку, но там всего пара полос и за деревьями почти не видно, рядом за забором строят школу. Во дворе все минимал, на стилобате можно потренить в хорошую погоду. Придется правда подождать сдачи соседних корпусов, но это будет быстро, так как застройщик надежный, объекты сдает вовремя, а некоторые даже раньше срока.
  • Петр Халиков
    Sun Jan 30 2022 21:00:35
    С женой долгое время жили с женой в частном доме в районе Красной площади, устали мотаться по пробкам, плюс дом отнимает много сил, денег и времени. Стали рассматривать квартиру поближе к центру, но сложно найти что-то достойное, чтобы двор была а не парковка. Увидели ЖК "Все свои", залезли на сайт, жена влюбилась в этот проект из-за внешнего вида. А меня больше интересовало наполнение, которое, кстати, реально крутое. Вся инфраструктура и социалка предусмотрена внутри территории, зоны отдыха, спорт площадка и тренажеры, закрытый паркинг. Место в паркинге купили вместе с квартирой, в данный момент занимаемся ремонтом и ждем скорейшего его окончания.
  • Дарья Ракова
    Fri Jan 21 2022 12:39:11
    Меня с мужем, друзья и родители отговаривали от покупки квартиры в этом жк, якобы дорого. А по мне цена здесь полностью себя оправдывает, жилье такого класса и должно столько стоить. Во-первых метраж квартир здоровский, мы оформили 100 квадратов, в комплексе система умный дом, можно забыть о ключах и т.д., в подъезд заходишь по телефону. Окна и потолки увеличенные, еще и панорамное остекление. И территория с отличной начинкой. Так что ни разу не пожалели о покупке.
  • Волкова Алиса
    Fri Jan 14 2022 11:29:19
    В Краснодаре цены гнут за жилье дай бог, при этом качество жилья ну такое......Долго я поэтому перебирала все возможные новостройки, Все свои изначально приглянулся расположением, потом уже после визита в офис была настроена на покупку, т.к. про комплекс получила очень много информации. Комплекс действительно заслуживает внимания, много всяких приколюх для современной жизни. Ну и по виду жк симпатичный, намного лучше предложенных новостроек.
  • Спиридонова Алиса
    Mon Dec 27 2021 12:05:03
    Мне очень нравится этот район, родители живут на Серова. От нашего дома буквально минут 5-10 пройтись. Цена на квартиру адекватная, смущали по началу цены на коммуналку, но в УК все разъяснили. Так же посмотрели какие тарифы на коммуналку в соседних многоэтажках. У нас чуть выше расход ОДН, тарифы такие же как и везде.
  • Кирилл Вахрушев
    Sun Dec 26 2021 13:15:56
    А мы с женой затянули с покупкой в 5 доме, не могли определиться двушку или трешку покупать. Пока спорили, квартиры уже подразобрали. Поэтому вложились в строящийся дом. А вот знакомые наши успели купить и уже в сентябре получили ключи, немного даже завидую им. Расспросил их как квартира, говорят, что все на достойном уровне. Ну а я и не сомневался.
  • Кирилл Спасский
    Thu Dec 23 2021 12:27:37
    Долгое время искали с женой жк, важным критерием выступало, чтоб метраж квартиры был более 100м2. В красе выбор не велик, поэтому ждали и не вкладывались во что попало. Знакомые рассказали про СК Семья и что у них как раз новый проект "Все свои". С женой залезли на сайт этого жк, как раз там была планировка как нам нужна, еще в 129м2. На следующий день уже сидели в офисе продаж и оформляли нашу квартиру. Теперь ждем сдачу.
  • Евгения
    Tue Dec 21 2021 11:21:46
    Мне от этого застройщика и светлоград понравился, но с жк Все свои они можно сказать вышли на новый уровень. Очень привлекательно смотрятся фасады домов, и кстати дома хоть и высокие, но чувства муравейника не создается. Купила здесь трехкомнатную квартиру, она замечательная, столько места, даже не верится, т.к. до этого жила в трешке м2. Разница колоссальная. Здесь предусмотрено два туалета, что тоже только радует.
  • Левин Юрий
    Mon Nov 29 2021 12:28:22
    Застройщик постарался над созданием проекта. Все в ногу со временем. Во-первых, сам комплекс выглядит презентабельно. Во-вторых, потолки нестандартные, выше, чем везде, комнаты просторные, а из-за потолка вообще хоромы. А больше мне понравилось что будет система умный дом, сам бы я зажал денег на такую штуку, а застройщик позаботился. Поэтому без сомнений оформил здесь квартиру еще и место в паркинге.
  • Олег
    Fri Oct 22 2021 11:36:24
    Сразу понравился район, развит хорошо, с социалкой проблем нет. Поторопились купить сейчас, потому что цена всё равно ниже не становится, а вложиться нужно. Жена мечтала о панорамных окнах, наконец нашли такое предложение в Красе
  • Лариса
    Fri Oct 15 2021 09:45:57
    Изначально при выборе жк нам понравился внешний вид комплекса, дома аккуратные и не пёстрые, довольно стильные. Плюс район спокойный, у нас мелкий растет, поэтому тусовки под окнами не наш вариант. А здесь много мамочек с колясками, да и для детишек прям раздолье, новороченные площадки и мест для игр полно. 
  • Дарья
    Tue Mar 09 2021 11:47:21
    Один из самых удобных районов города, недалеко от Садовой и Северной улиц, трамвай тоже в шаговой доступности. Близко и школы, и садики, и магазины, так как это не окраина, а Центральный район Краснодара. Рассматривали несколько ЖК и всё-таки решили покупать квартиру здесь, хоть есть и ЖК подешевле, но тут понравилось больше, удобнее. 
  • Алла
    Tue Mar 09 2021 10:54:18
    Расположение комплекса очень удачное и нам хорошо подходит (мы поблизости снимаем квартиру). После просмотра вариантов оформили большую трехкомнатную в ипотеку. Строят хорошими темпами!
  • Инна
    Fri Mar 05 2021 11:32:50
    Строительство комплекса ведется хорошими темпами. Район нам нравится - он развитой и при этом довольно тихий, с хорошей экологией. Ипотеку нам банк согласовал без проблем, ждем сдачи нашего дома.
  • Марина
    Fri Mar 05 2021 11:21:35
    По окончании строительства этот жилой комплекс действительно обещает быть одним из лучших в Краснодаре, потому что здесь всё продумано до мелочей и сделано для людей. Квартиру уже купила.
  • Виктор
    Fri Feb 26 2021 14:37:28
    Очень крутой современный жилкомплекс, особенно отмечу хорошо обустроенную дворовую территорию с детскими и спортивными площадками. Понравилась также планировка двухкомнатных квартир с просторной кухней и большой прихожей. В общем, сейчас мы на стадии рассмотрения нескольких вариантов и этот ЖК один из самых оптимальных.
  • Татьяна
    Fri Feb 26 2021 13:43:23
    Удачный жилой комплекс, который подошёл нам по большинству параметров. Инфраструктура очень развитая: рядом школа, садик, больница. В общем, находимся в заключительной стадии покупки.
  • Арина Конасова
    Thu Feb 25 2021 14:16:04
    Уговорила мужа купить квартиру в "Все Свои", до моих родителей здесь одна остановка, моя мама нам помогает с детьми, очень удобно будет дальше жить, с поддержкой родителей, район хороший, магазины, инфраструктура - здесь всё близко, воздух здесь хороший, квартиру выфбрали в доме, который еще не достроен, поэтому пока ждём, но темп строительства идёт быстро.
  • Илья Владимирович
    Thu Feb 25 2021 13:52:28
    Купили квартиру в "Все свои" в начале месяца, пришлось постараться, целенаправленно хотели сюда, очень хороший район, детям здесь будет хорошо, маму перевезём в однокомнатную квартиру в пол километре отсюда, теперь и семья будет вместе и времени экономить будем и на дороге и на семейных делах, пока мы очень довольны и счастливы!
  • Мирина
    Thu Feb 18 2021 11:14:57
    Комплекс полностью адаптирован для жизни. Есть вся необходимая инфраструктура. Не жалею, стр купили здесь квартиру. Хотелось,  чтобы строительство закончилось поскорее и можно было начать ремонт.      
  • Елена
    Thu Feb 18 2021 10:30:37
    Приобрели квартиру в конце года, всем довольны и никаких претензий к застройщику не возникло на данный момент. Инфрастуктуру обещают развитую, будут детские сады и школа, больница. 
  • Антон
    Mon Feb 15 2021 11:07:30
    Свою квартиру я уже обставил полностью. Крайне доволен своим переездом сюда, потому что район прекрасный. Летом будет выглядеть всё еще более красиво, а пока вот занимаюсь своим бытом потихоньку. На работу ехать 15 минут, а раньше час ехал.
  • Максим
    Mon Feb 15 2021 10:35:53
    Мой дом уже достроили и сдали в эксплуатацию. Пока не живу там, так как делаю ремонт и покупаю мебель. В целом мне все нравится, планировка квартиры удачная, просторная. Строили с умом.
  • Алёна
    Thu Feb 11 2021 09:59:24
    Мы купили квартиру в 19-м литере, очень нравится, что парк недалеко, лично для меня это было важно. Ну и хорошая транспортная развязка большой плюс, так как личного авто у меня нет.
  • Александра
    Thu Feb 11 2021 09:59:00
    Купили квартиру в этом ЖК за свои сбережения. Три года с мужем усердно работали и заработали на такую красоту. Дом нам нравится внешне, очень стильный, современный. Купили квартиру - трёшку.  
  • Надя
    Mon Feb 08 2021 10:36:10
    Очень много преимуществ у этого ЖК, очень мне нравится закрытый двор, видеонаблюдение и скверик для прогулок, проблем с парковкой нет. Есть спортивные тренажёры и детские площадки.
  • Дмитрий
    Mon Feb 08 2021 10:04:12
    Купили с женой здесь квартиру, тк родились близнецы, и пришлось думать о расширении жилплощади. ЖК "Все свои" понравился наличием рядом детского сада и школы, чистым воздухом, отличной инфраструктурой. Ждем не дождемся сдачи дома, чтоб переехать!
  • Светлана
    Wed Feb 03 2021 15:46:48
    Планируем купить квартиру в этом жилом комплексе, в высоте на 19 этаже. Проект квартиры нам очень понравился. Инфраструктура здесь вполне развитая. Думаем все-таки подождать сдачу дома и не покупать на этапе строительства. Хоть так выйдет дороже, но есть опасения. Может кто-то здесь поделится позитивным опытом такой сделки. Есть те, кто уже приобрёл здесь жилье? 
  • Юлия
    Wed Feb 03 2021 15:35:57
    Задумываемся над покупкой квартиры в ЖК все свои. Проект очень понравился. Вопрос к тем, кто уже купил здесь квартиру. Как думаете, когда будет сдан дом ? Все ли вас устраивает, рады ли вы покупки ?
  • Михаил
    Tue Feb 02 2021 11:36:01
    Хорошее комфортное жилье достойного класса. Есть все для комфортной жизни любого члена семьи. Придомовая территория сделана стильно, с навороченными зонами отдыха. Много деревьев. 
  • Жанна
    Tue Feb 02 2021 11:35:02
    Дом в котором собираемся покупать квартиру в жк "Все свои", еще строиться. Но видели план двора и всё очень понравилось. Для нашего подрастающего сынишки как раз будет где разгуляться. 
  • Кирилл
    Wed Jan 27 2021 13:19:09
    Очень понравился проект и сама территория. Подскажите пожалуйста примерные сроки когда будет действовать школа и сад? Или они уже работают? Планируем приобрести квартиру, но аспект обучения для нас очень важен.
  • Иван
    Mon Jan 25 2021 11:09:20
    Долго выбирали где купить себе квартиру и остановились на этом варианте - практически центр города, близко все виды транспорта, все магазины, аптеки рядом, школы тоже недалеко. Район благоустроенный, зелёный, а сам дом и прилегающая территория, просто загляденье. Дом, в котором будем покупать себе квартиру, почти построен и застройщик надёжный. 
  • Кристина
    Thu Jan 21 2021 10:11:14
    Жилой комплекс «Все свои» подошёл мне по всем параметрам, поэтому все взвесив я решила купить квартиру. Больше всего мне нравится удачное расположение. Я планирую рождение ребёнка, поэтому для меня важен закрытый двор.
  • Телли
    Wed Jan 20 2021 15:59:48
    Хороший проект,  Я люблю жить на больший высотах, хоть на двадцатом этаже. Из всего что мы смотрели, мы выбрали именно этот. А самое главное строится там всё очень быстро. Также удобно, что рядом все есть и не надо далеко ходить.
  • Екатерина
    Tue Jan 19 2021 20:24:12
    Из всех вариантов остановились на этом жилом комплексе, так как устраивает местоположение и инфраструктура. Радует, что ход строительства идет оперативно. Уже находимся в процессе покупки квартиры.  
  • Алёна
    Tue Jan 19 2021 13:49:31
    Общались с представителями застройщика и пока это самый оптимальный вариант и мы к нему склоняемся. Один вопрос:проезжали мимо стройки, чтобы осмотреться, но это было в начале ноября. Муж сказал, что ЖК на вид уже почти достроен, но сейчас там ведутся работы? Зима и карантин все-таки.
  • Виктор
    Fri Jan 15 2021 17:33:27
    Вообще на самом проекте конечно всё очень нравится . Тут главная надежда на застройщика ,что бы сдал вовремя и реализован проект был на должном уровне. Ну довольно скоро уже всё увидим сами.                                                                                                                                                                                                                                      
  • Виктор
    Thu Jan 14 2021 14:11:10
    Мы вообще довольны и местом и ходом строительства  ЖК Светлоград. Лично меня больше всего радует ,что наконец буду жить в доме с подземным паркингом и больше в гараж зимой ходить не придётся.